小田原市前川・中古戸建・4,380万円

物件種別/中古戸建

価格/4,380万円

交通/JR東海道線 国府津駅徒歩20分

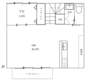
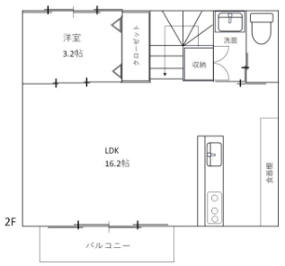
土地/196.41㎡

建物/99.00㎡

構造/軽量鉄骨造2階建

完成/令和3年7月

取引態様/媒介

現況/空家(残置物あり)

引渡/相談

所在/神奈川県小田原市前川(詳細は当社までお尋ねください)

設備/公営水道・公共下水・オール電化

取引形態/媒介

※公簿売買・現況有形有姿売買